易立構SRC鋼構式貨櫃型組合屋(非貨櫃屋)
關於我們
產品介紹
結構分析
生產流程
優勢所在
差異說明
模型預算參考及展示
專利資料
申請場勘
專利資料
常見問題
聯絡資訊
精選範例
申請場勘
最新消息
模型預算參考及展示
100萬以內
100-199萬
200萬以上
關於我們
產品介紹
結構分析
生產流程
優勢所在
差異說明
模型預算參考及展示
專利資料
申請場勘
專利資料
常見問題
聯絡資訊
精選範例
申請場勘
精選範例
首頁
>
精選範例
> 高雄美濃
申請場勘
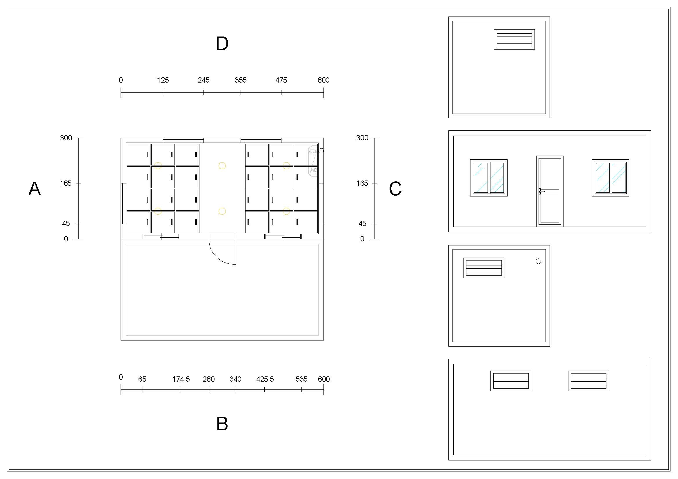
高雄美濃
商品圖像
商品資訊
商品Q&A
提問者稱呼
E-mail
留言內容
驗證碼
上一頁
PAGE TOP
PAGE TOP
回首頁